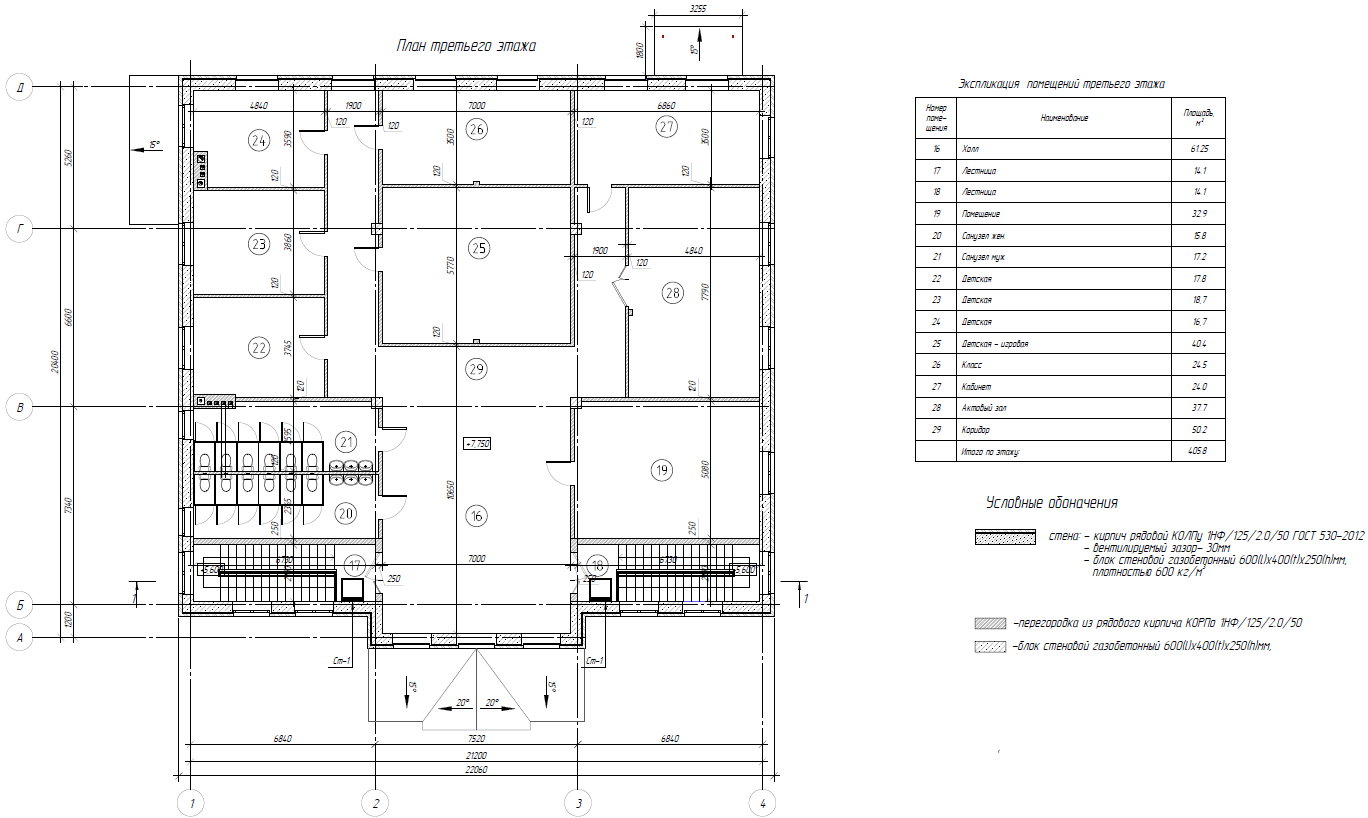
Проект С-4
Жилой дoм
Общая площадь 1338,6 кв.м.
Жилая площадь 175,0 кв.м.
Количество этажей 3
-
Project type
ИЖС,
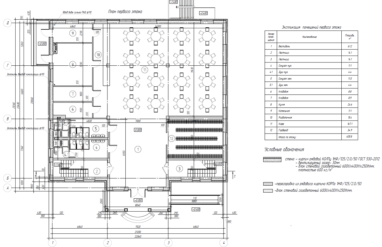
Проект С-4
Жилой дoм
Общая площадь 1338,6 кв.м.
Жилая площадь 175,0 кв.м.
Количество этажей 3
ИЖС,