Проект С-2
Жилой дoм
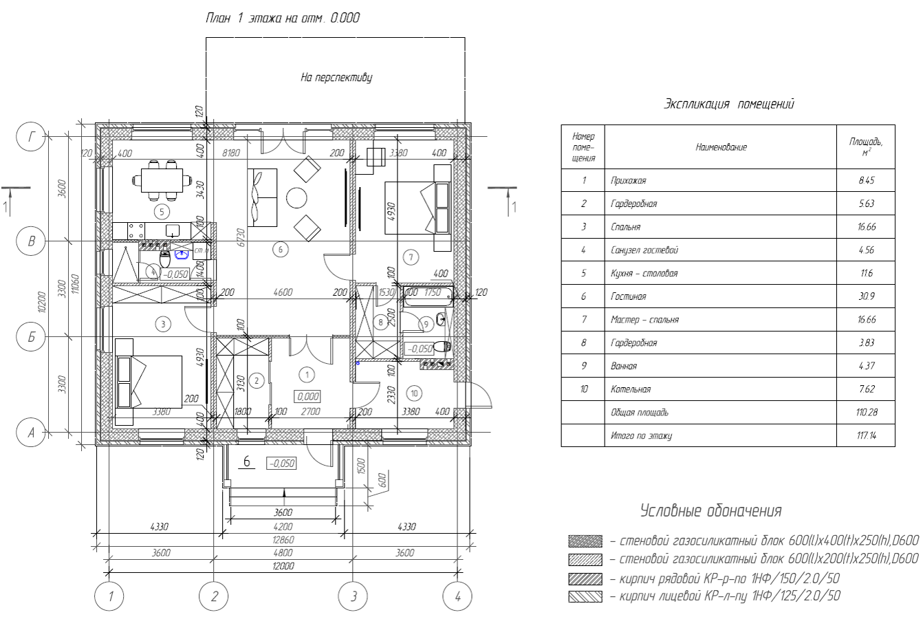
Общая площадь – 117,4 кв.м.
Жилая площадь – 64,22 кв.м.
Количество этажей — 1
-
Project type
ИЖС,
Проект С-2
Жилой дoм
Общая площадь – 117,4 кв.м.
Жилая площадь – 64,22 кв.м.
Количество этажей — 1
ИЖС,