Проект С-1
Жилой дoм

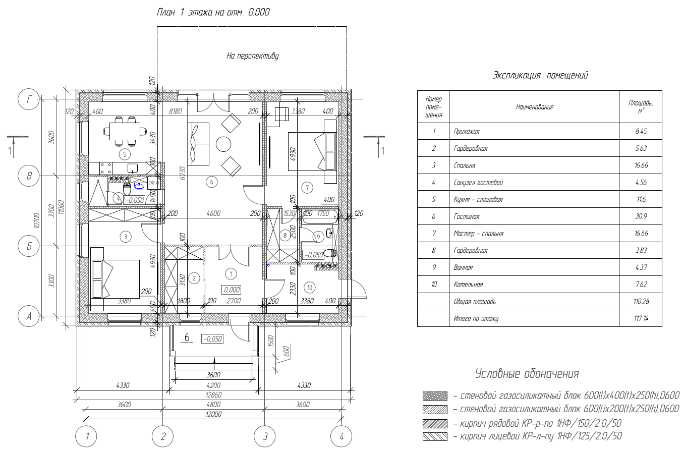
Общая площадь – 198,53 кв.м.
Жилая площадь – 57,24
Количество этажей -3

  • Project type

    ИЖС,

img
img
img
img
img
img
img
img
img
img
img
img
img
×
Номер телефона

8-925-097-09-09

Email

info@planartpp.ru

Адрес

Московская область, г. Павловский Посад, ул. Павловская, д. 26, 4 этаж, офис 405

    Нажимая кнопку "Отправить" Вы соглашаетесь с Согласием на обработку персональных данных