Склад
Проект здания склада
Московская область, г. Павловский Посад.
Здание одноэтажное неотапливаемое с блоком встроенных
административно — бытовых и технических отапливаемых помещений.
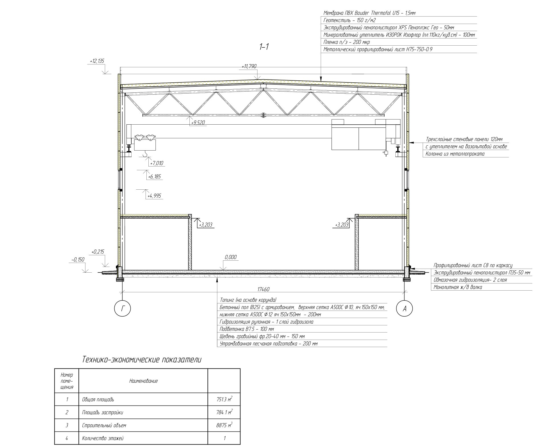
Здание оборудовано кран -балкой грузоподъемностью 5,0 т.

Общая площадь здания — 751,3 кв.м.
Площадь застройки – 784,1 кв.м.
Год строительства -2025.

  • Project type

    Производственно-складкие здания,

img
img
img
×
Номер телефона

8-925-097-09-09

Email

info@planartpp.ru

Адрес

Московская область, г. Павловский Посад, ул. Павловская, д. 26, 4 этаж, офис 405

    Нажимая кнопку "Отправить" Вы соглашаетесь с Согласием на обработку персональных данных