Реконструкция производственно-складского здания
Московская обл., г. о. Павловский Посад, пер. Интернациональный, 28Г.
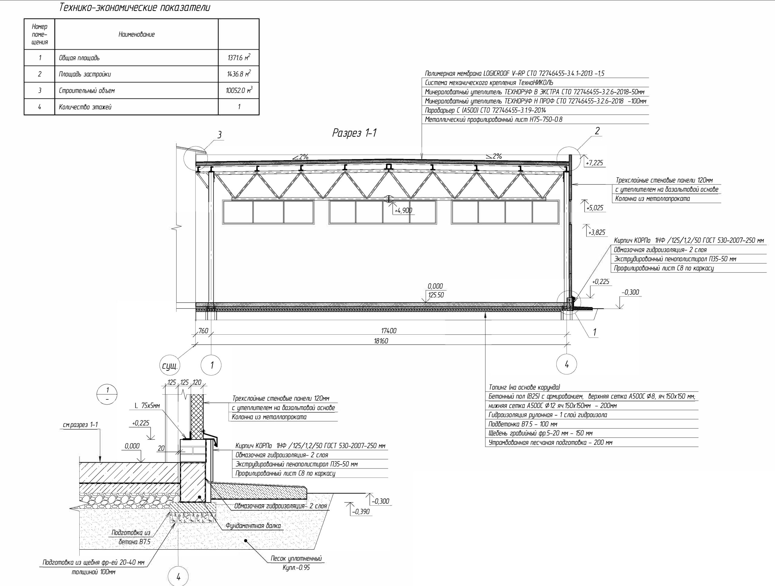
Реконструкция включает в себя:
пристройку складского назначения с восточной продольной стороны
существующего здания, прямоугольной формы в плане,
габаритными размерами 18,4х30,8 м, высотой до несущих конструкций – 4,9 м.,
максимальная высота до парапета – 7,525 м.
Площадь -546,0 кв.м.
После реконструкции- здание одноэтажное, прямоугольной формы,
габаритными размерами 30,8х46,6 м.
Год — 2024.
-
Project type
Производственно-складкие здания,