Проект перепланировки нежилого помещения
Московская область, г. Павловский Посад, пер. Интернациональный.
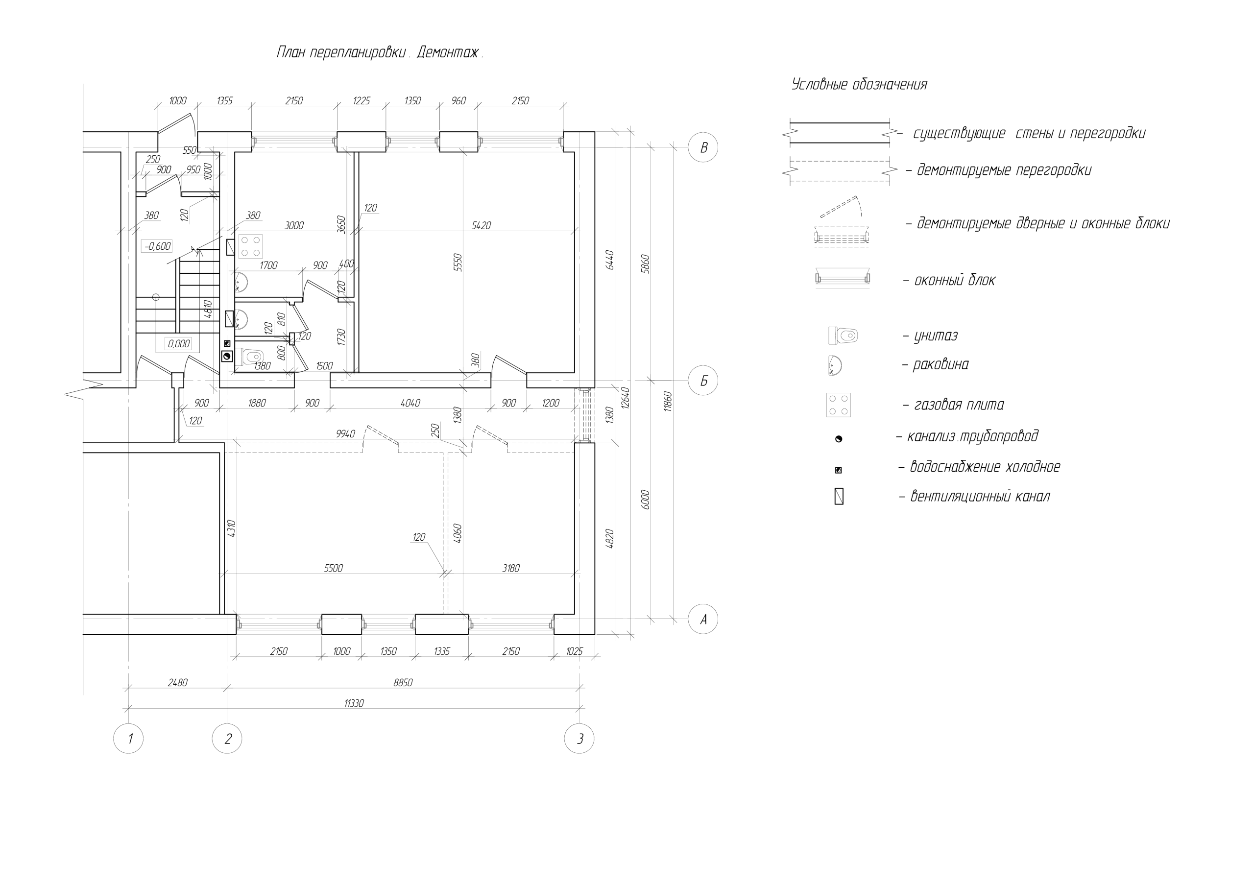
Нежилое помещение расположено на первом этаже многоквартирного трехэтажного дома. Площадь помещения -94,9 кв.м.
В помещении предусмотрено размещение аптеки для продажи готовых лекарственных средств.
Перепланировка – 2024 год.
-
Project type
Перепланировка,