Средняя общеобразовательная школа №29 имени П.И. Забродина

Московская область, Городской округ Подольск, г. Подольск, ул. Парковая, д.16
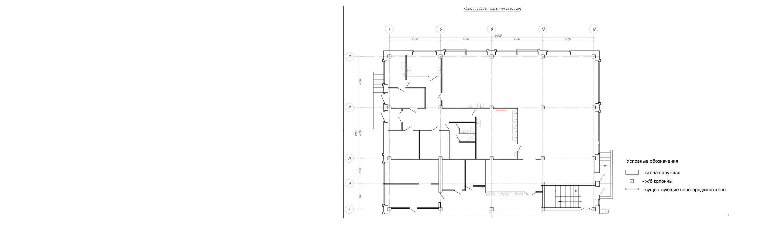
Здание используется как общеобразовательное учреждение.
Здание подлежит частичному капитальному ремонту.
Граница проектирования столовая с пищеблоком.
Общая площадь проектируемой части 372,5 м2.
Проектируемая часть здания имеет габаритные размеры в осях 18,00 х24,70м. Высота помещений проектируемой части 3.00м.

Капитальный ремонт -2024 год.
Заказчик МКУ «Градостроительное управление»

  • Project type

    Капитальный ремонт,

img
img
img
img
img
×
Номер телефона

8-925-097-09-09

Email

info@planartpp.ru

Адрес

Московская область, г. Павловский Посад, ул. Павловская, д. 26, 4 этаж, офис 405

    Нажимая кнопку "Отправить" Вы соглашаетесь с Согласием на обработку персональных данных