Государственное автономного профессиональное образовательное учреждение
Московской области «Подмосковный колледж «Энергия» (ГАПОУ МО «ПК «ЭНЕРГИЯ»)
Московская область, г. Балашиха, мкр-н Ольгино, ул. Граничная, д. 4
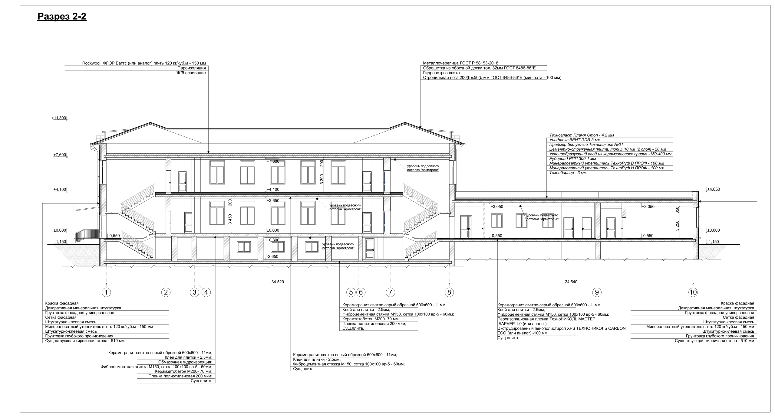
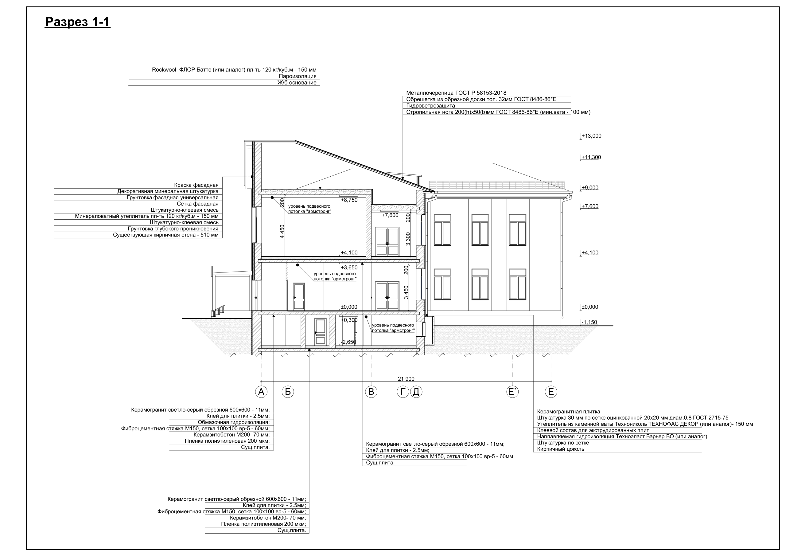
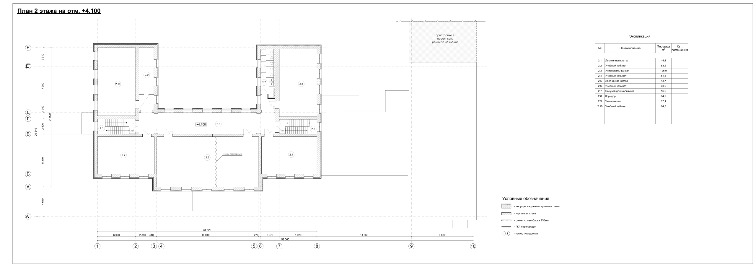
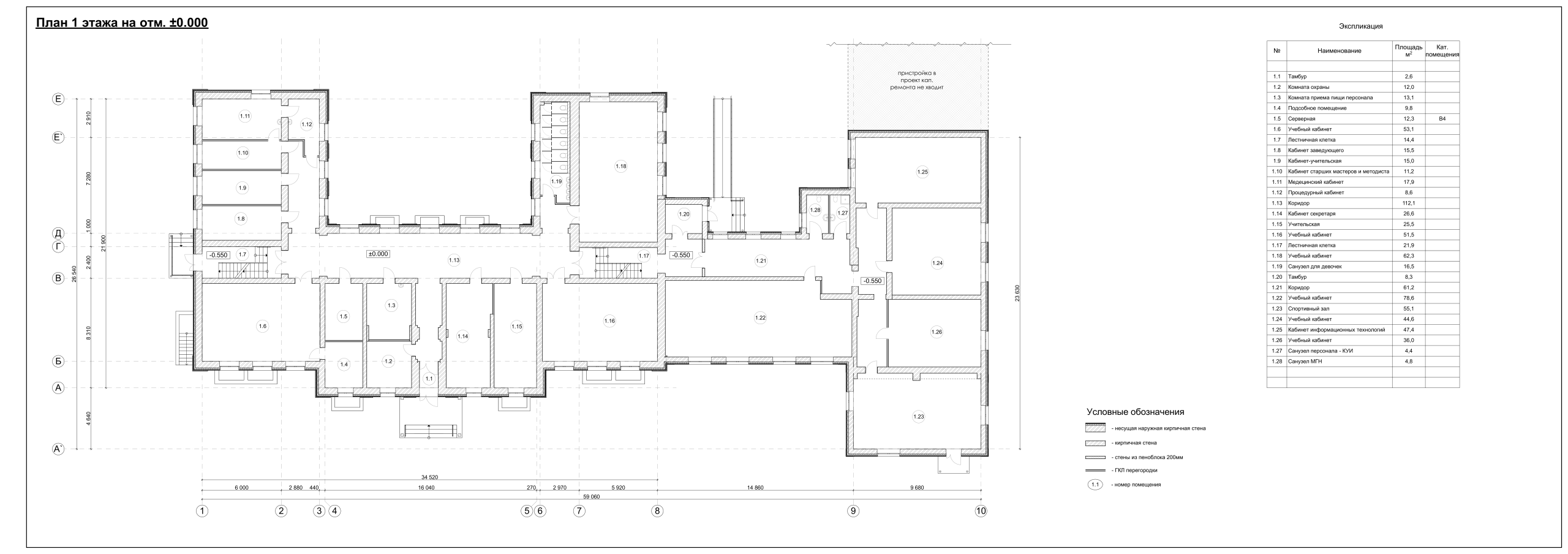
Здание трехэтажное с подвалом.
Общая площадь здания 1616,6 м2.
Площадь застройки – 1104,0 м2.
Площадь земельных участков – 4581 м2.
Капитальный ремонт — 2025 год.
Заказчuк Государственное автономное профессиональное образовательное учрежденuе Московской области Подмосковный колледж «ЭНЕРГИЯ» (ГАПОУ МО «ПК «ЭНЕРГИЯ»)
-
Project type
Капитальный ремонт,