Муниципальное образовательное учреждение «Гимназия №4»
Московская область, г. Подольск, ул. Правды, д.21.
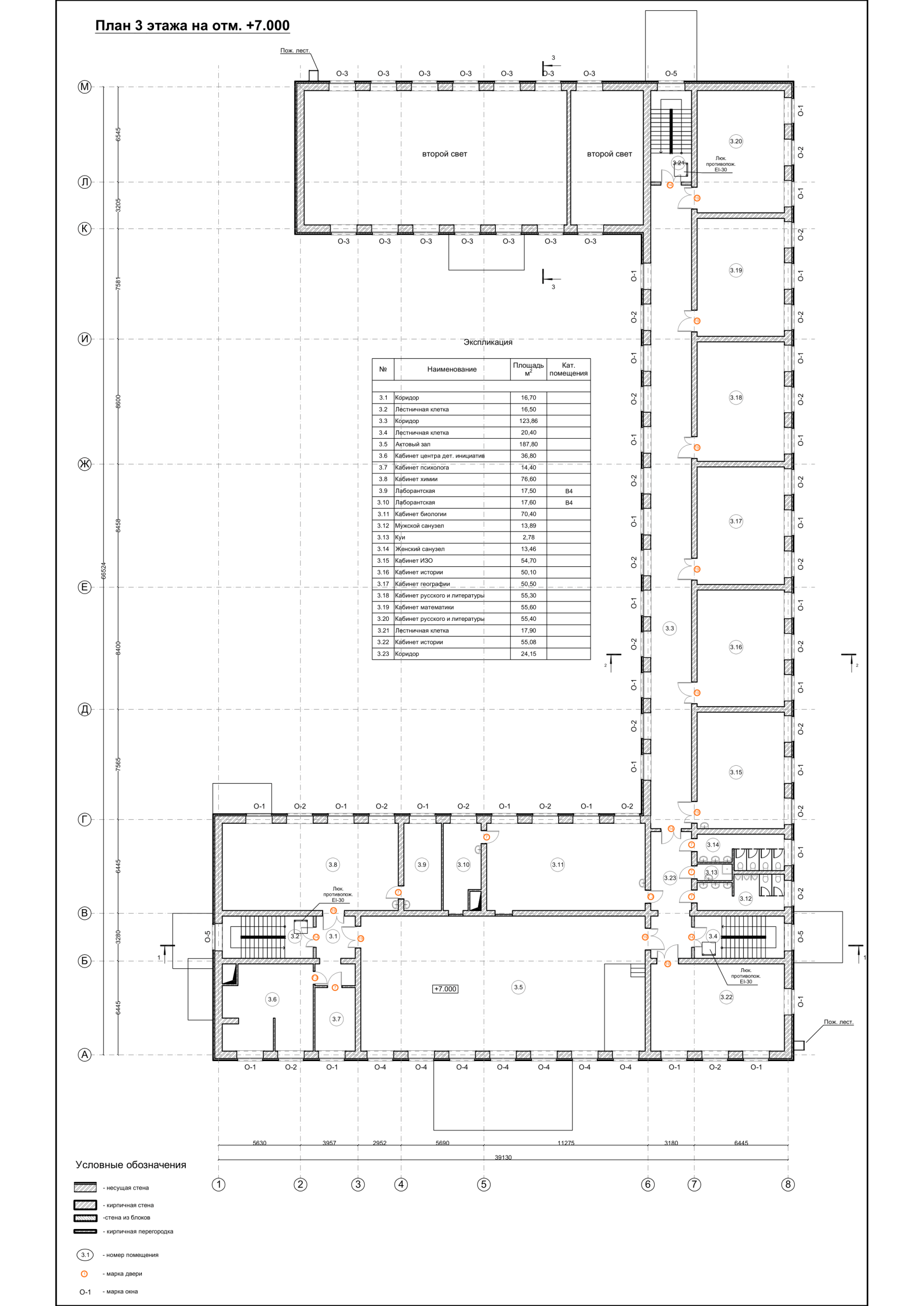
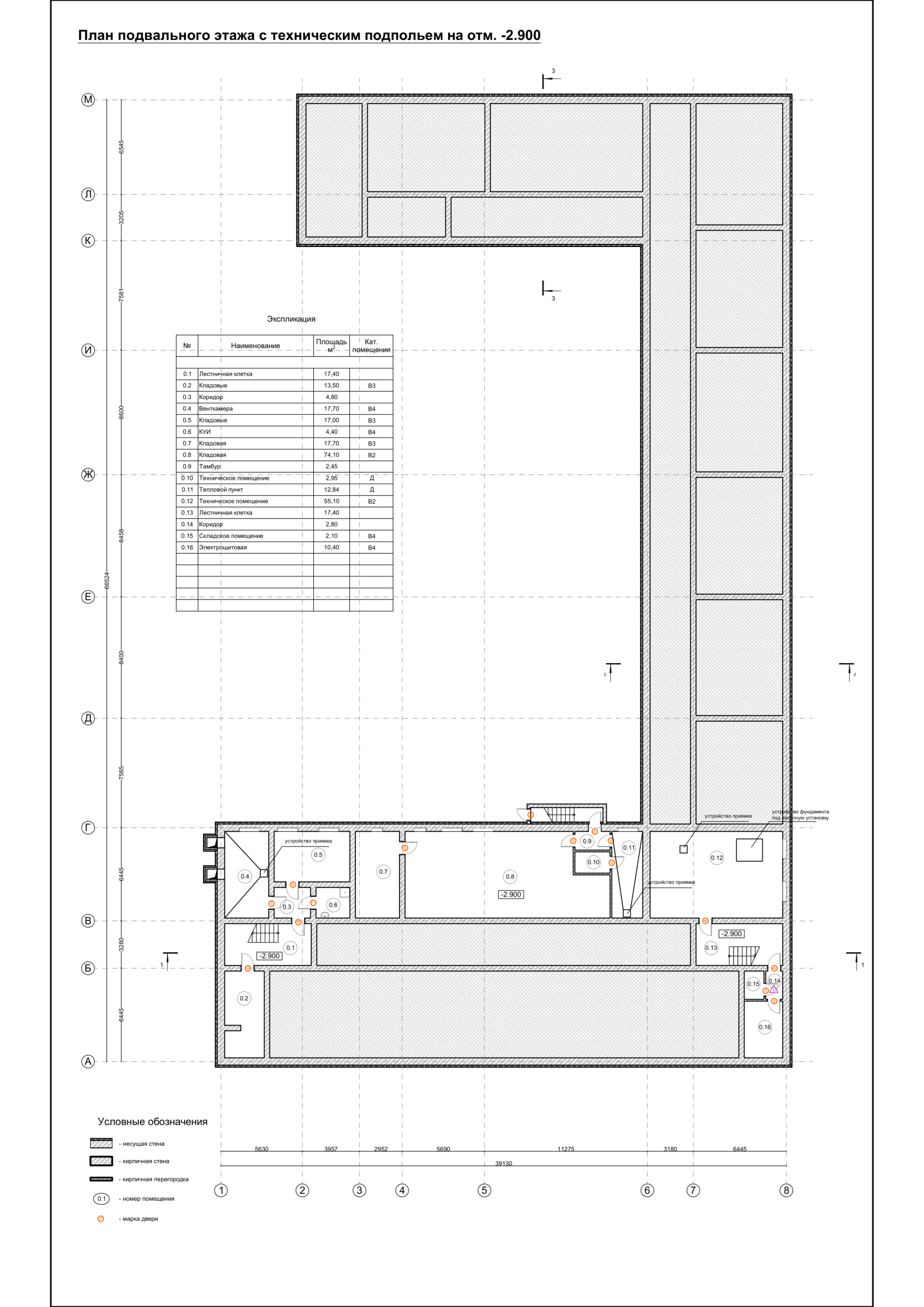
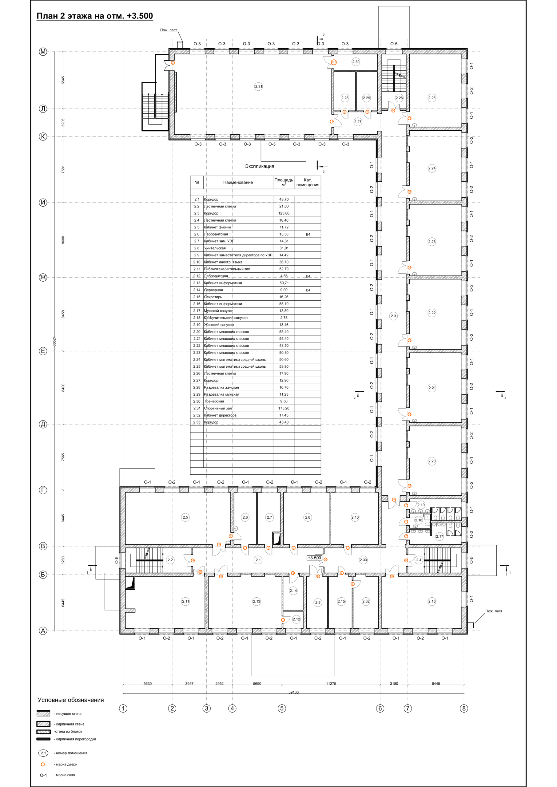
Здание используется как общеобразовательное учреждение.
Здание трехэтажное с подвалом. Год постройки – 1961 год.
Строительный объем здания — 16649,00 куб. м.
Общая площадь здания – 3608,80 кв.м.
Площадь застройки – 1560,00 кв.м.
Капитальный ремонт 2024 год.
Заказчик МКУ «Градостроительное управление»
-
Project type
Капитальный ремонт,