Муниципальное бюджетное учреждение дополнительного образования «Детская школа искусств №3»
Московская область, г. Балашиха, ул. Зеленая, д.18.
Здание предназначено для реализации детских дополнительных общеобразовательных программ для детей с 6 лет по освоению различных направлений музыкально-эстетического образования.
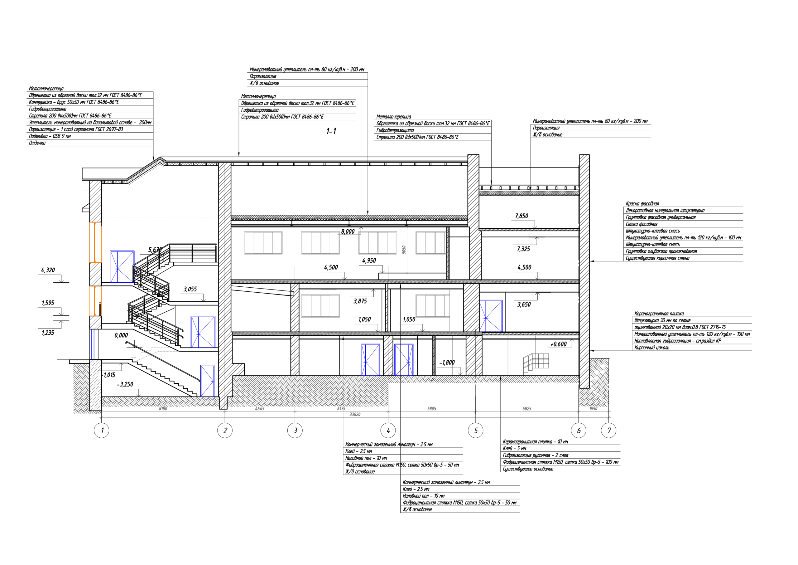
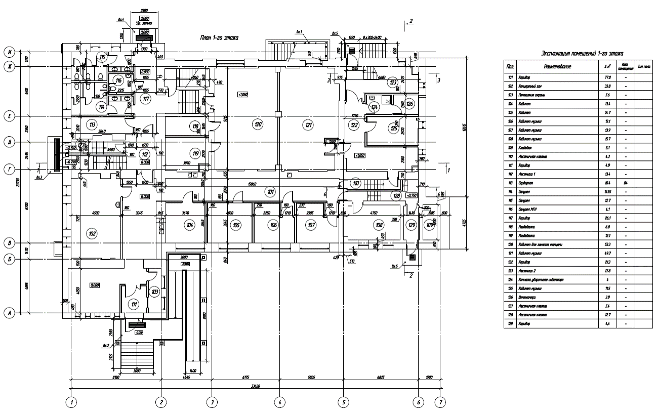
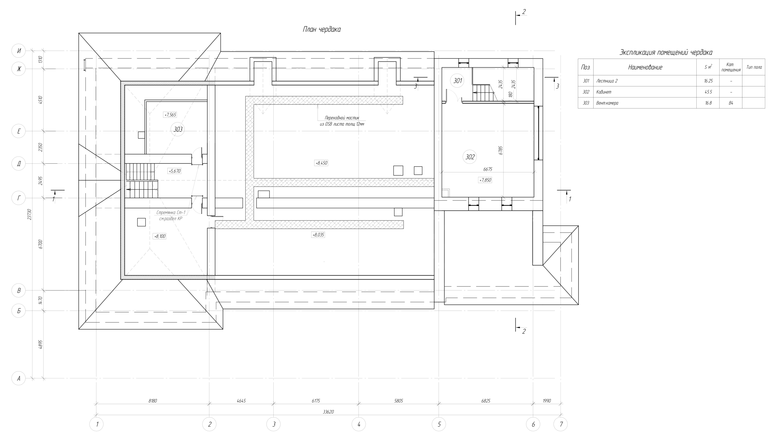
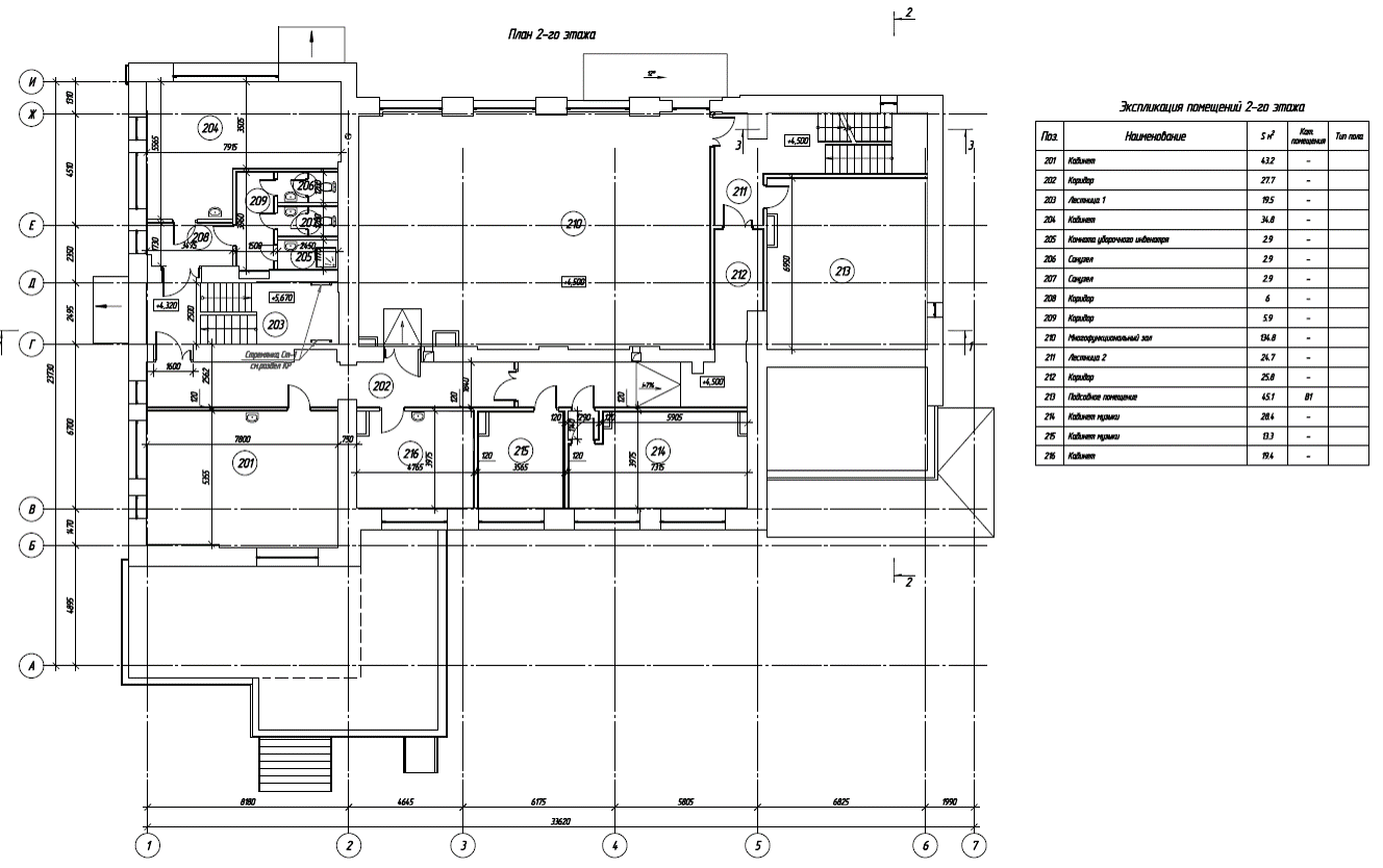
Корпус школы представляет собой 2-х этажное здание с подвалом и мансардой.
Год постройки – 1928.
Общая площадь здания — 1289,2 кв.м
Строительный объем здания – 6553,0 куб. м.
Габаритная высота здания –12.635 м
Капитальный ремонт здания 2024 г.
Заказчик – ГКУ МО «Дирекция заказчика капитального строительства»
-
Project type
Капитальный ремонт,