МАОУ СОШ №7 с УИОП (ДОШКОЛЬНОЕ ОТДЕЛЕНИЕ №17)/Детский сад №17
Московская область, г. Балашиха, мкр. Железнодорожный,
ул. Маяковского, д. 6
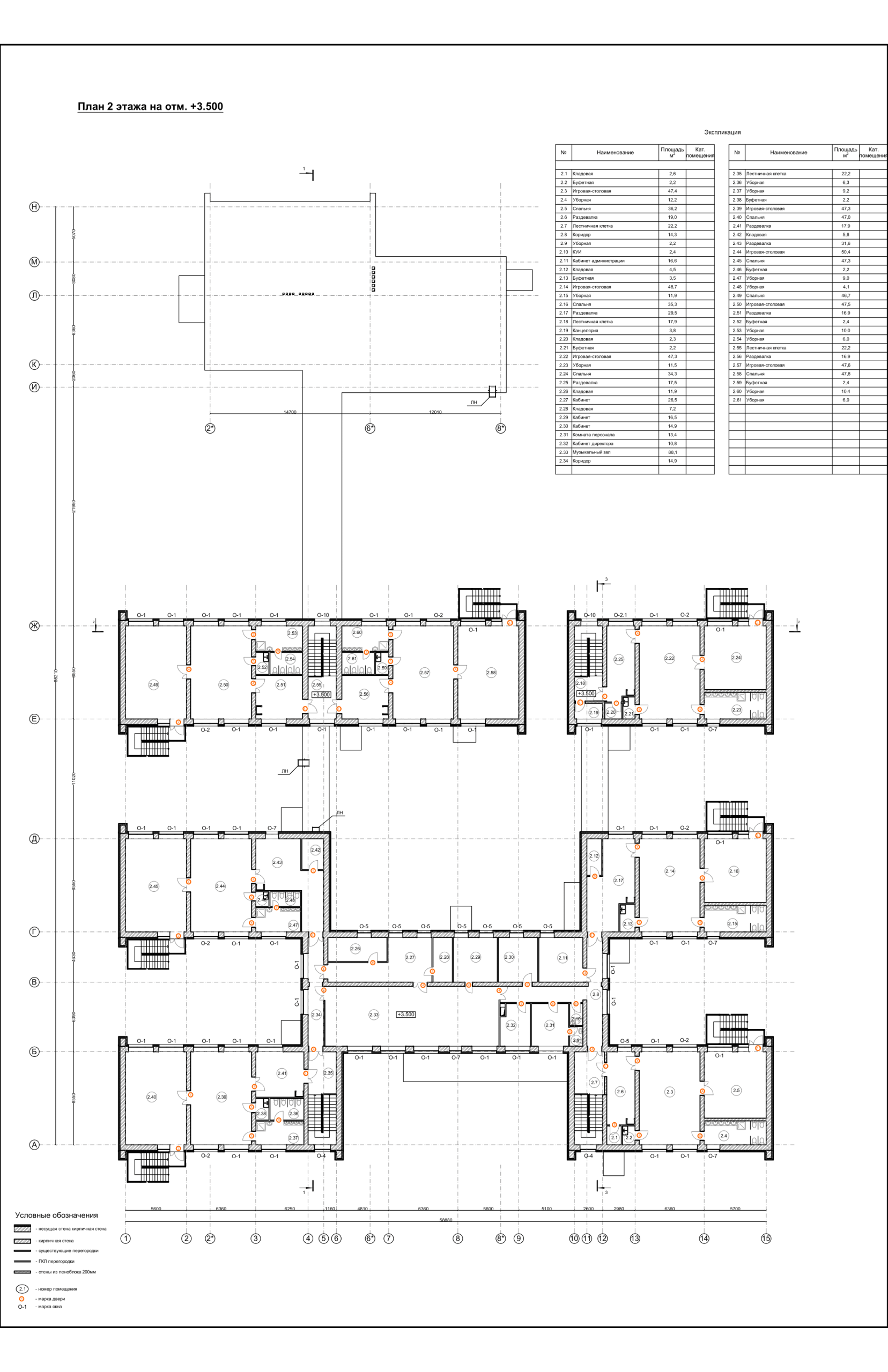
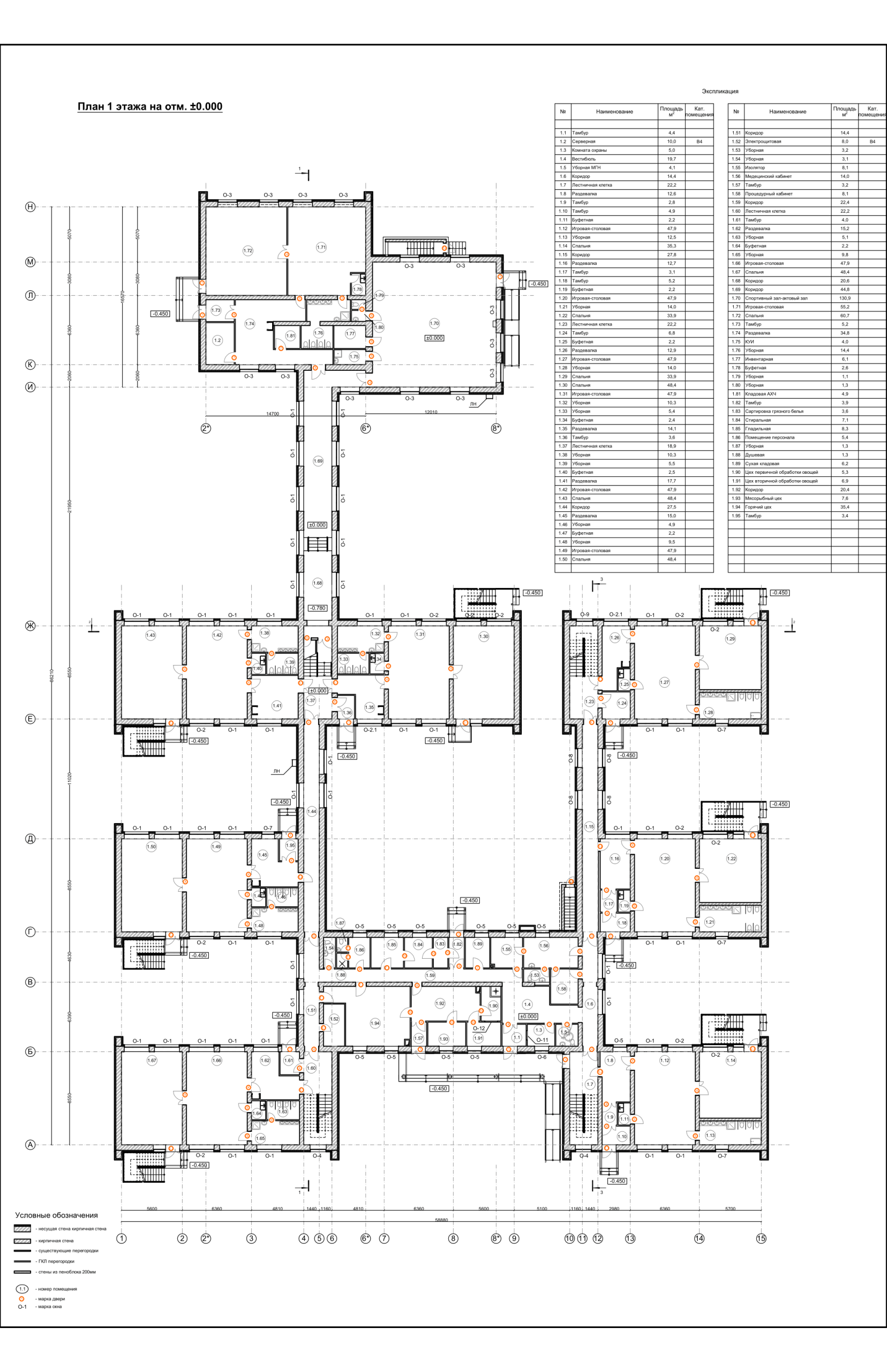
Детский сад предназначен для всестороннего развития личности детей.

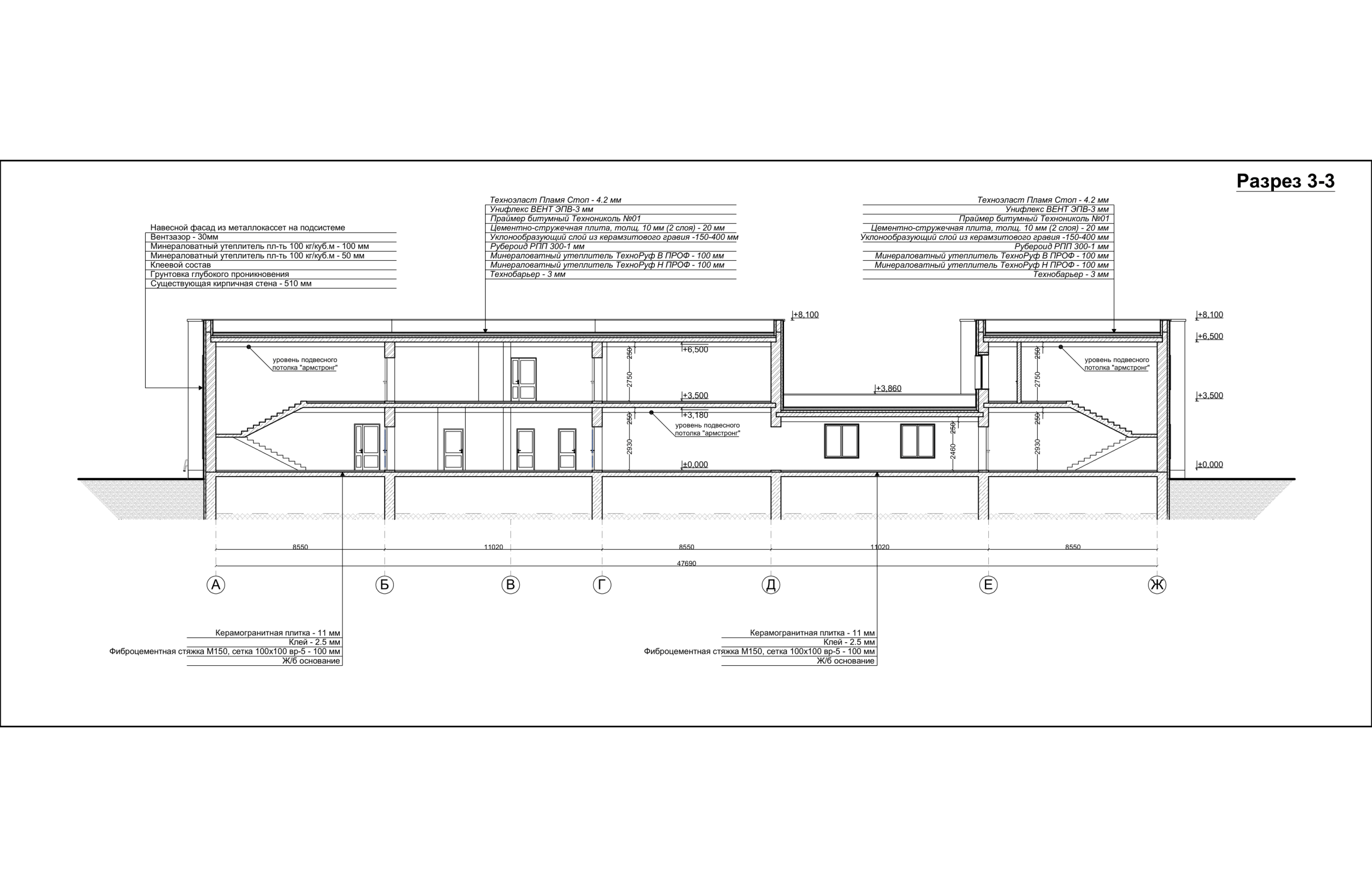
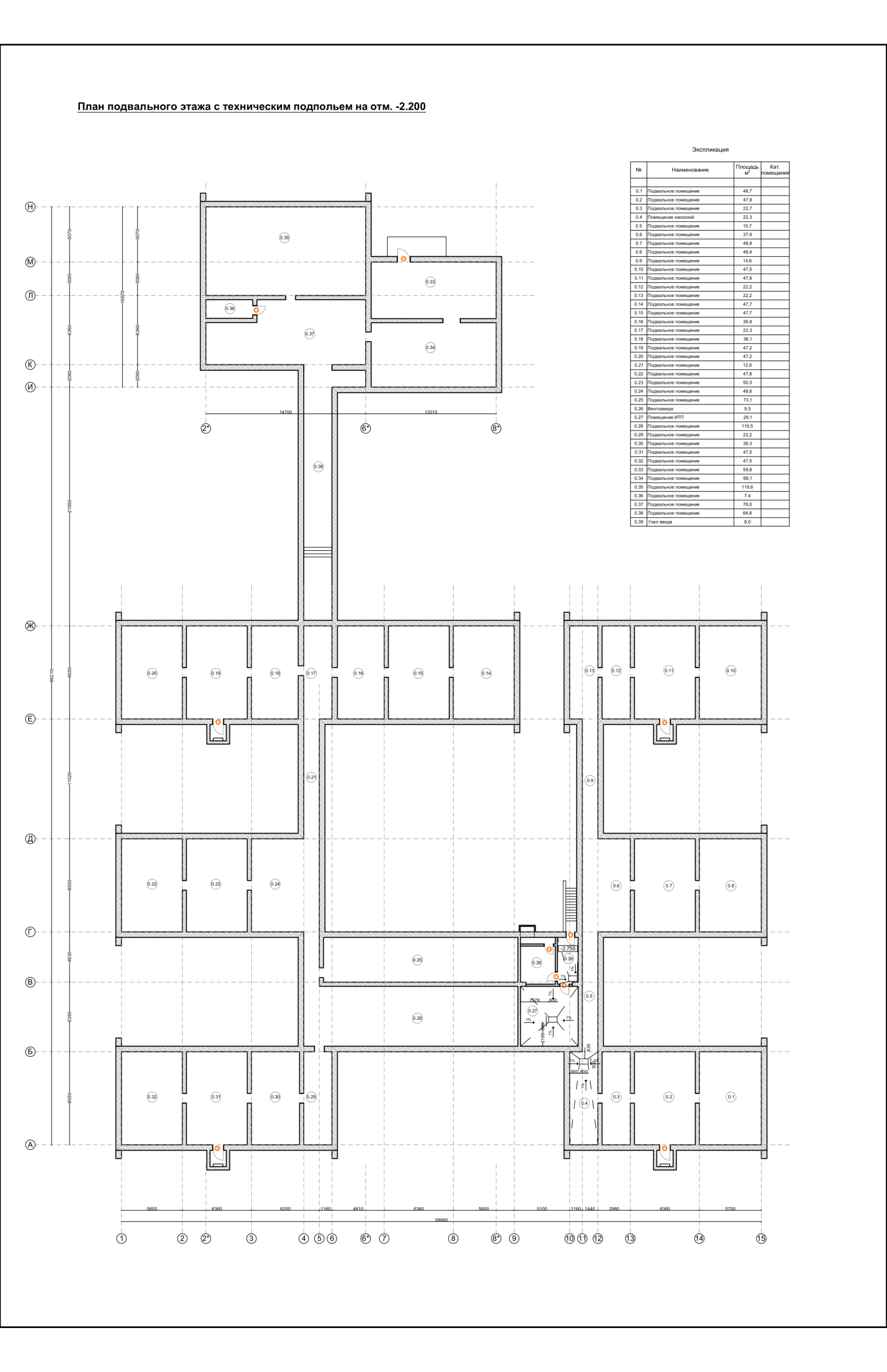
Здание двухэтажное с технически подпольем.
Общая площадь здания 4149,3 м2.
Площадь застройки – 2972,8 м2.
Площадь земельного участка – 13514 м2.

Капитальный ремонт — 2024 г.
Заказчик — Государственное казенное учреждение Московской области
«Дирекция заказчика капитального строительства»

  • Project type

    Капитальный ремонт,

img
img
img
img
img
img
img
img
img
img
img
img
img
img
img
img
img
img
img
img
img
img
img
img
img
img
img
img
img
img
img
img
img
×
Номер телефона

8-925-097-09-09

Email

info@planartpp.ru

Адрес

Московская область, г. Павловский Посад, ул. Павловская, д. 26, 4 этаж, офис 405

    Нажимая кнопку "Отправить" Вы соглашаетесь с Согласием на обработку персональных данных